Scan-to-CAD

Transforming spatial data into detailed 2D drawings.

Our as-built drawings give you a verified understanding of your building, its layout, dimensions, and materials, captured with precision and accuracy

From a single site visit and capture, we produce deliverables at speed.

Included in our CAD package

Our 2D CAD pack Conforms to architectural standards.
Each output supports confident design decisions, regulatory compliance, and seamless coordination across disciplines. With DRC’s verified data, you can minimise on-site conflicts, accelerate approvals, and future-proof assets for renovations and upgrades.
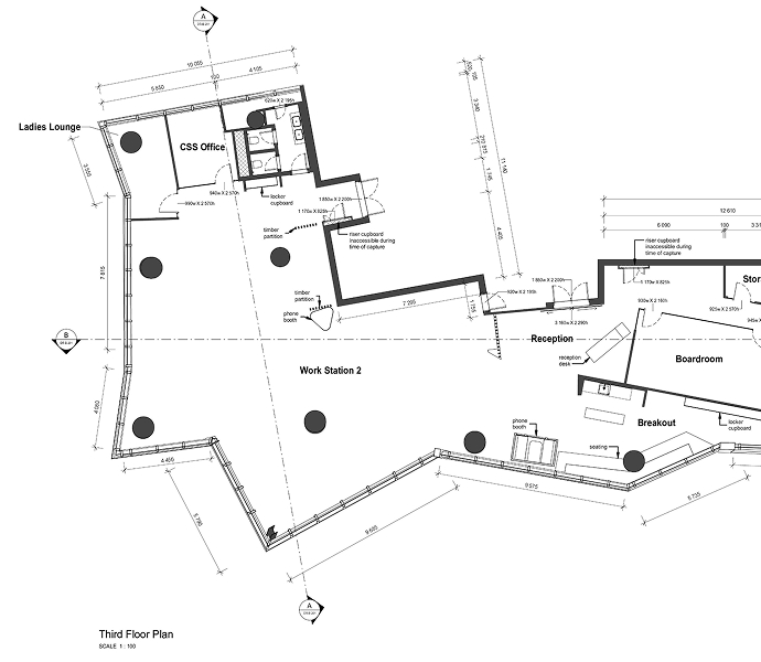
Detailed floor plans

Detailed floor plans

A scaled, presentation of the property, an overall
building in a sectional view.

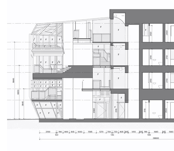
Sections

Sections

A scaled, presentation of the property, an overall
building in a sectional view.

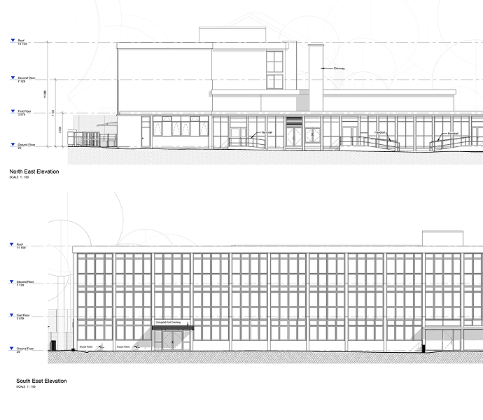
External elevations

External elevations

A scaled, presentation of the property, an overall
building in an elevational view.

Optional deliverables

Internal elevation

Internal elevation

A 2D representation of a room's vertical surfaces, providing a view of a specific wall from floor to ceiling.
Reflected ceiling plans

Reflected ceiling plans

A Reflected Ceiling Plan (RCPs) shows MEPF fixtures from above, including lights, fans, and vents.
Lease plans

Lease plans

A lease plan accurately identifies a leasehold within a property.
Fire safety plan

Fire safety plan

A plan that shows escape routes, emergency exits, fire safety equipment such as extinguishers and alarms.
Gross external area drawing

Gross external area drawing

A scaled drawing showing external measurements at each floor for property valuation and planning.
Site information drawing

Site information drawing

A scaled drawing showing the building's relationship to its surrounding environment.

Through Stak Hub, explore and manage your spatial data effortlessly.

Stak Hub brings all your verified spatial data together in one secure, intuitive platform. Access floor plans, CAD, BIM, photography and digital twins instantly — all produced through DRC’s proprietary technology. With every asset structured standardised and easy to navigate, you gain complete visibility and control across your portfolio.
90% of building data
is locked in PDFs,
outdated CAD files,
or siloed spreadsheets.
- MCKINSEY, AUTODESK, FMI

Explore additional services we provide

Verified. ACCURATE. EFFICIENT.

With rich, accurate 3D datasets and ground breaking end-to-end technology, Stak delivers a wide-range of industry leading assets.

Measured Building Survey

Delivering accuracy you can trust, we create a single verified dataset that helps you understand and showcase your property with confidence.

Measured Building Survey

Scan-to-BIM

Using advanced laser scanning and BIM technology, we create high-accuracy 3D models with full architectural, structural, and MEP detail.

Scan-to-BIM

We’ve digitised 180,000+ spaces, totalling 390+ million square feet

Trusted to deliver accuracy and
reliability
across portfolios