Appart Hotel, Paris Appart Hotel, Paris

Appart Hotel, Paris

Appart Hotel, Paris

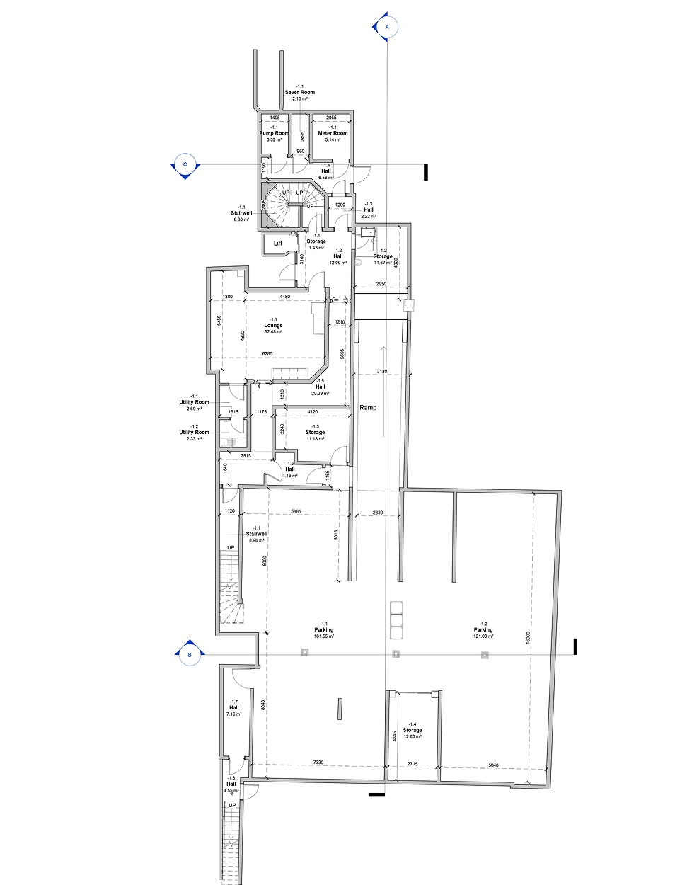
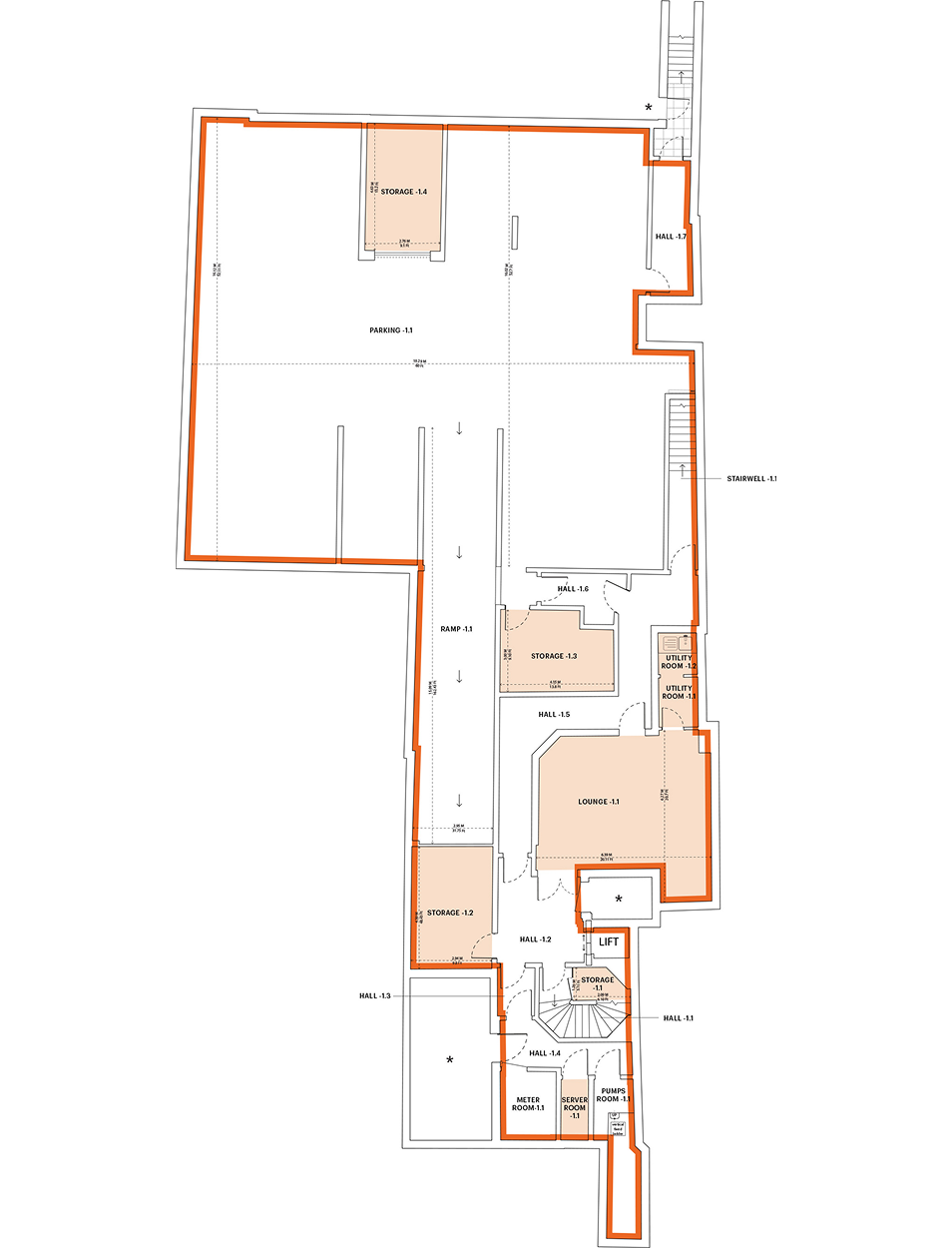
Via the strategic partnership between Stak and Cushman & Wakefield, Stak was appointed to undertake a building survey of the Appart Hotel, located in Paris neighbourhood of La Villette. The purpose of the survey was to establish accurate floor areas, model and illustrate a full record of as-is conditions, including MEPF details, for future redevelopment purposes.

Our certified Stak Digital Surveyors captured over 5.2 billion points of measurement. Processing spatial data was completed efficiently utilising proprietary Pupil cloud software. The Stak Verified® GIA is over 28,000 square feet, spread across two separate buildings and ten floors. All final deliverables are accessible via Stak Hub, our secure online client portal.