NHS, Grade II Hospital,  UK NHS, Grade II Hospital,  UK

NHS, Grade II Hospital, UK

NHS, Grade II Hospital, UK

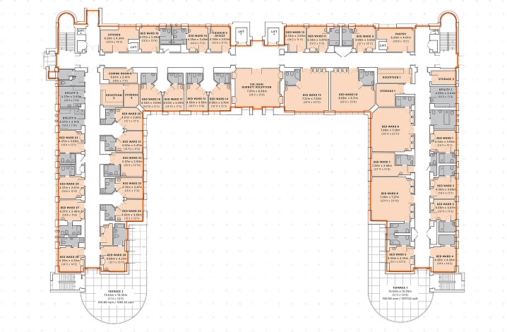
About the project

DRC digitised a Grade II listed hospital, to facilitate a successful, confidential sale. With over 175,000 square feet spread across multiple blocks, all required spatial data was delivered in days, not months.

 

NOTABLE
  • Building capture completed quickly and safely, with confidentiality adhered to at all times
  • Final assets delivered within 15 business days